Wohnungsgrundrisse

Beispielhafte Grundrisse

Hier finden Sie beispielhafte Wohnungstypen der 1- bis 4-Raum-Wohnungen, die Ihnen die mögliche Aufteilung der Räume veranschaulichen.

 

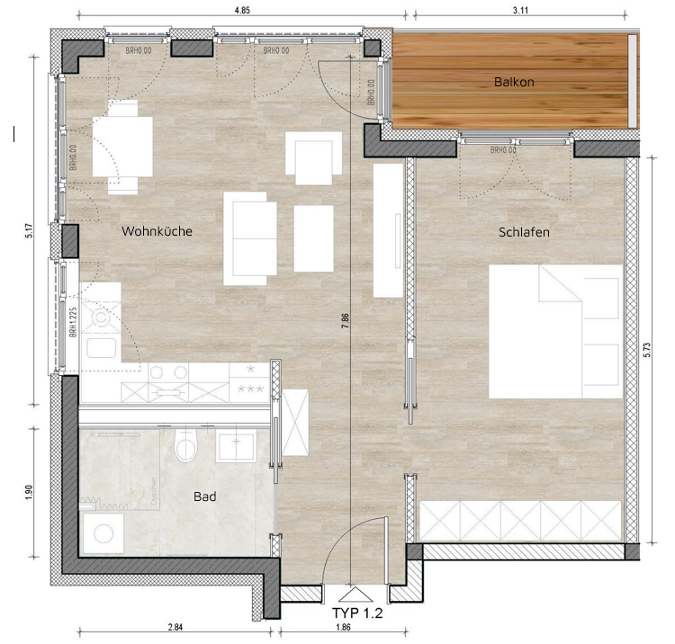
2-Raum-Wohnung

Hier sehen Sie einen beispielhaften Grundriss einer 2-Raum-Wohnung. Im Haus gibt es verschiedene Wohnungstypen - die Größen variieren zwischen 48 und 59 Quadratmetern.

3-Raum-Wohnung

Hier sehen Sie einen beispielhaften Grundriss einer 3-Raum-Wohnung. Im Haus gibt es verschiedene Wohnungstypen - die Größen variieren zwischen 67,5 und knapp 70 Quadratmetern.

4-Raum-Wohnung

Hier sehen Sie den Grundriss einer 4-Raum-Wohnung. Die Größe der 4-Raum-Wohnungen liegt bei knapp 83 Quadratmetern.

  • Zurück zur Übersicht

  • Mehr zum Quartier

  • Johanniter Regionalverband Nordbrandenburg